このページを印刷する
- 価格
-
2億2,000万円
- 間取
-
3LDK
- 管理費等
- 3万100円
| 所在地 | 東京都中央区晴海5丁目 |
|---|---|
| 建物名 | HARUMI FLAG PARK VILLAGE A棟 |
| 交通 |
|
| 築年月 | 2023年11月(築2年1ヶ月) | 新築/中古 | |
|---|---|---|---|
| 面積 | 92.62m²(28.01坪) | 計測方式 | 壁芯 |
| バルコニー | 16m²(4.84坪) | 向き | 南西 |
| 建物階数 | 地上14階地下1階 | 所在階 | 2階 |
| 部屋番号/区画番号 | --- | 総戸数/総区画数 | 89 |
| 建物構造 | RC | ||
| 管理形態 | 全部委託管理人日勤管理組合:有 | ||
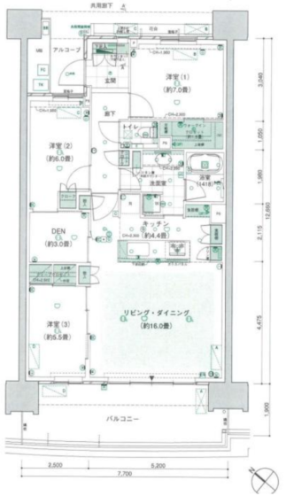
| 間取内容 | LD16.0帖 K4.4帖 洋室7.0帖 洋室6.0帖 洋室5.5帖 その他3.0帖 3LDK+DEN |
||
| 住宅保険料 | 修繕積立金 | 12,880円 | |
| 駐車場 | 空無 月額28,500円~36,000円 |
取引態様 | 仲介 |
| 引渡/入居時期 | 相談 | 現況 | 空家 |
| 周辺環境 | |||
| 設備・条件 |
その他費用 月額3,350円
|
||
| 物件カテゴリー | |||
| 自社物 | 先物 | 状態 | 売出中 |
| 物件番号 | 251155 | ||
| 情報登録日 | 2025年11月29日 | 情報更新日 | 2025年11月29日 |
【仲介手数料30%OFF】
HARUMI FLAG PARK VILLAGE A棟
2階・南西向き・3LDK・92.62㎡
レインボーブリッジビュー・晴海ふ頭公園が目の前
◆物件の特長◆
・三井住友建設施工
・レインボーブリッジを望む人気のA棟
・晴海ふ頭公園隣接
・充実の共用施設(SUN VILLAGE・SEA VILLAGEの共用施設と相互利用可)
・各階ゴミステーション(24時間ゴミ出し可)
◆お部屋の特長◆
・2階部分 南西向き住戸のため日照・通風良好
・眼下には晴海ふ頭公園を望みます
・専有面積92.62㎡の3LDK+DEN
・各居室は整形につき使い勝手の良い間取り
・約16.0帖のリビングダイニング(床暖房有)
・4.4帖のワイドスパンなアイランドキッチン
・浄水器・ディスポーザー・食洗機有り
・豊富な収納スペース
・洋室7.0帖にはウォークインクローゼット有
◆ 充実の共用施設 ※一部有償◆
▪ パーティールーム (A棟1階、F棟1階、T棟2階)
▪ リラックスラボ(B棟1階)
▪ ゲストルーム (B棟1階、C棟2階、F棟1階、T棟48階)
▪ ライブラリーラウンジ(B棟1・2階)
▪ フラッグコア(C棟1階)
▪ キッズスペース(C棟1階、T棟2階)
▪ 足湯ラウンジ(D棟1階)
▪ ワークスペース(E棟1階)
▪ シアタールーム(F棟B1階)
▪ ソラテラス(F棟14階)
▪ ビューラウンジ(F棟14階)
▪ バーラウンジ(T棟48階) 他
SUN VILLAGE・SEA VILLAGE共用施設の相互利用可
物件掲載内容と現況に相違がある場合は現況を優先といたします。
物件周辺マップ
Loading...
ご注意
- 物件によっては正確な位置を示していない場合がございます。
- 現況が表示された内容と異なる場合は現況優先といたします。
- 表示されてる地図はGoogle社より提供されてるデータに基づいたものであり、表示内容についての責任は負いかねます。























