このページを印刷する
- 価格
-
2億1,800万円
- 間取
-
3LDK
- 管理費等
- 3万970円
| 所在地 | 東京都中央区晴海5-6-7 |
|---|---|
| 建物名 | HARUMI FLAG PARK VILLAGE T棟 |
| 交通 |
|
| 築年月 | 2025/9 | 新築/中古 | |
|---|---|---|---|
| 面積 | 78.20m²(23.65坪) | 計測方式 | 壁芯 |
| バルコニー | 40.54m²(12.26坪) | 向き | 北東 |
| 建物階数 | 地上50階地下1階 | 所在階 | 18階 |
| 部屋番号/区画番号 | --- | 総戸数/総区画数 | 722 |
| 建物構造 | RC | ||
| 管理形態 | 全部委託管理人日勤管理組合:有 | ||
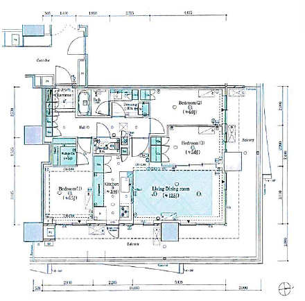
| 間取内容 | LD12.5帖 K3.9帖 洋室6.5帖 洋室6帖 洋室5帖 | ||
| 住宅保険料 | 修繕積立金 | 15,050円 | |
| 駐車場 | 空無 | 取引態様 | 仲介 |
| 引渡/入居時期 | 相談 | 現況 | 未完成 |
| 周辺環境 | |||
| 設備・条件 |
自治会費:100円
インタ-ネット利用料:2,200円
HARUMLFLAG CLUB会費:500円
テレビ使用料:550円/月
|
||
| 物件カテゴリー | |||
| 自社物 | 先物 | 状態 | 売出中 |
| 物件番号 | 250723 | ||
| 情報登録日 | 2025年7月12日 | 情報更新日 | 2025年11月23日 |
<充実の共用施設>
一部有料COMMUNITY ROOM (1階)
TOBACCO SPOT(1階)
KODOMO PLAZA(2階)
SKY LOUNGE URBAN(48階)
SHIZUKU SUITE 54(48階)
IKOI SUITE55(48階)
・ワイドスパン、北東角で通風良好。
・スーパーと小中学校が隣接しており子育てに便利な立地
・東京BRTで新橋・虎ノ門方面、都営バスで東京駅へのアクセスが良好
物件掲載内容と現況に相違がある場合は現況を優先といたします。
物件周辺マップ
Loading...
ご注意
- 物件によっては正確な位置を示していない場合がございます。
- 現況が表示された内容と異なる場合は現況優先といたします。
- 表示されてる地図はGoogle社より提供されてるデータに基づいたものであり、表示内容についての責任は負いかねます。









