このページを印刷する
- 価格
-
4億9,990万円
- 間取
-
2LDK
- 管理費等
- 6万1,260円
| 所在地 | 東京都港区白金4丁目 |
|---|---|
| 建物名 | パークレ・ジェイド白金レジデンス |
| 交通 |
|
| 築年月 | 2023年1月(築2年11ヶ月) | 新築/中古 | 中古 |
|---|---|---|---|
| 面積 | 122.72m²(37.12坪) | 計測方式 | 壁芯 |
| バルコニー | 4.5m²(1.36坪) | 向き | 北西 |
| 建物階数 | 地上7階地下1階 | 所在階 | 3階 |
| 部屋番号/区画番号 | --- | 総戸数/総区画数 | 55 |
| 建物構造 | RC | ||
| 管理形態 | 全部委託管理人日勤管理組合:有 | ||
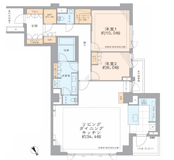
| 間取内容 | LDK34.4帖 洋室10.1帖 洋室6.0帖 | ||
| 住宅保険料 | 修繕積立金 | 53,170円 | |
| 駐車場 | 空無 42,000円 - 52,000円、空きは要確認 |
取引態様 | 仲介 |
| 引渡/入居時期 | 相談 | 現況 | 空家 |
| 周辺環境 | |||
| 設備・条件 |
インターネット料 月額1,265円
|
||
| 物件カテゴリー | |||
| 自社物 | 先物 | 状態 | 売出中 |
| 物件番号 | 215229 | ||
| 情報登録日 | 2025年12月14日 | 情報更新日 | 2025年12月14日 |
【仲介手数料無料】
パークレ・ジェイド白金レジデンス
122.72㎡・2LDK+WIC・納戸・北西角部屋
リノベーション物件
2ボウル洗面化粧台・トイレ2か所
1822サイズの浴室
トランクルーム付き (約1.5㎡)
◇物件の特長◇
◆東京都港区白金住居表示
●東京メトロ南北線「白金台」駅 徒歩6分
●都営三田線「白金台」駅 徒歩6分
◆おすすめポイント
・2025年6月リフォーム物件
・122.72m2
・2ボウル洗面台
・トイレ2か所
・1822サイズの浴室
・床暖房
◇リフォーム内容◇
・ガスコンロ新規交換
・洗濯パン・洗面水栓新規交換
・トイレ交換
・照明器具一部新設
◇周辺施設◇
シェラトン都ホテル (徒歩6分)
物件掲載内容と現況に相違がある場合は現況を優先といたします。
物件周辺マップ
Loading...
ご注意
- 物件によっては正確な位置を示していない場合がございます。
- 現況が表示された内容と異なる場合は現況優先といたします。
- 表示されてる地図はGoogle社より提供されてるデータに基づいたものであり、表示内容についての責任は負いかねます。




















