このページを印刷する
- 価格
-
4億7,990万円
- 間取
-
3LDK
- 管理費等
- 4万3,000円
| 所在地 | 東京都千代田区一番町 |
|---|---|
| 建物名 | パークコート一番町 |
| 交通 |
|
| 築年月 | 2018年10月(築7年3ヶ月) | 新築/中古 | 中古 |
|---|---|---|---|
| 面積 | 95.34m²(28.84坪) | 計測方式 | 壁芯 |
| バルコニー | 14.04m²(4.24坪) | 向き | 南 |
| 建物階数 | 地上15階地下6階 | 所在階 | 6階 |
| 部屋番号/区画番号 | --- | 総戸数/総区画数 | 79 |
| 建物構造 | RC | ||
| 管理形態 | 全部委託管理人日勤管理組合:有 | ||
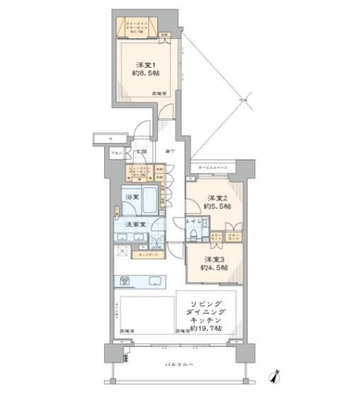
| 間取内容 | LDK19.7帖 洋室8.5帖 洋室5.5帖 洋室4.5帖 | ||
| 住宅保険料 | 修繕積立金 | 16,970円 | |
| 駐車場 | 46,000円空無 月額46,000円~52,000円 ※空き状況は要確認 |
取引態様 | 仲介 |
| 引渡/入居時期 | 即時 | 現況 | 空家 |
| 周辺環境 | |||
| 設備・条件 |
|
||
| 物件カテゴリー | |||
| 自社物 | 先物 | 状態 | 売出中 |
| 物件番号 | 251043 | ||
| 情報登録日 | 2025年10月22日 | 情報更新日 | 2025年12月10日 |
【仲介手数料無料】パークコート一番町
千代田区一番町の三井不動産レジデンシャル旧分譲 ~パークコートシリーズ~
◆物件概要◆
■2018年10月築
■三井不動産レジデンシャル(株)分譲
■三井住友建設(株)による設計・施工
■建物は免震構造を採用
■安心の24時間管理
■各階ゴミステーション有り
◆住戸について◆
☆鉄筋コンクリート造15階建6階部分
☆専有面積95.34m2 3LDK+WIC+SIC
☆バルコニー面積14.04m2
☆南東向きの住戸
☆WIC・SICなど豊富な収納
☆ペット飼育可(細則有)
☆2025年8月末リノベーション完了
フローリング新規貼替 / 壁・天井クロス新規貼替
床暖房マット新規設置(LD・洋室1) / 照明器具新規設置
田中工藝製洗面化粧台新規交換
田中工藝製システムキッチン新規交換(食器洗い機付き)
TOTO製洗浄便座付トイレ新規交換 …等
◆アクセス◆
■東京メトロ半蔵門線「半蔵門」駅 徒歩3分
■東京メトロ有楽町線「麹町」駅 徒歩5分
■都営新宿線「市ヶ谷」駅 徒歩8分
■JR中央・総武線「市ヶ谷」駅 徒歩11分
■東京メトロ丸ノ内・南北線「四ツ谷」駅 徒歩13分
物件掲載内容と現況に相違がある場合は現況を優先といたします。
物件周辺マップ
Loading...
ご注意
- 物件によっては正確な位置を示していない場合がございます。
- 現況が表示された内容と異なる場合は現況優先といたします。
- 表示されてる地図はGoogle社より提供されてるデータに基づいたものであり、表示内容についての責任は負いかねます。































