このページを印刷する
- 価格
-
3億9,880万円
- 間取
-
3LDK
- 管理費等
- 2万1,200円
| 所在地 | 東京都港区白金1‐17‐1 |
|---|---|
| 建物名 | 白金タワー |
| 交通 |
|
| 築年月 | 2005年9月(築20年3ヶ月) | 新築/中古 | 中古 |
|---|---|---|---|
| 面積 | 101.33m²(30.65坪) | 計測方式 | 壁芯 |
| バルコニー | 6.85m²(2.07坪) | 向き | 西 |
| 建物階数 | 地上42階地下3階 | 所在階 | 26階 |
| 部屋番号/区画番号 | --- | 総戸数/総区画数 | 581 |
| 建物構造 | RC | ||
| 管理形態 | 全部委託管理人日勤管理組合:有 | ||
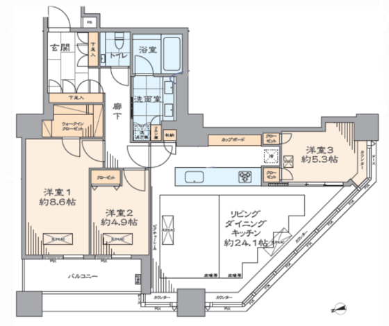
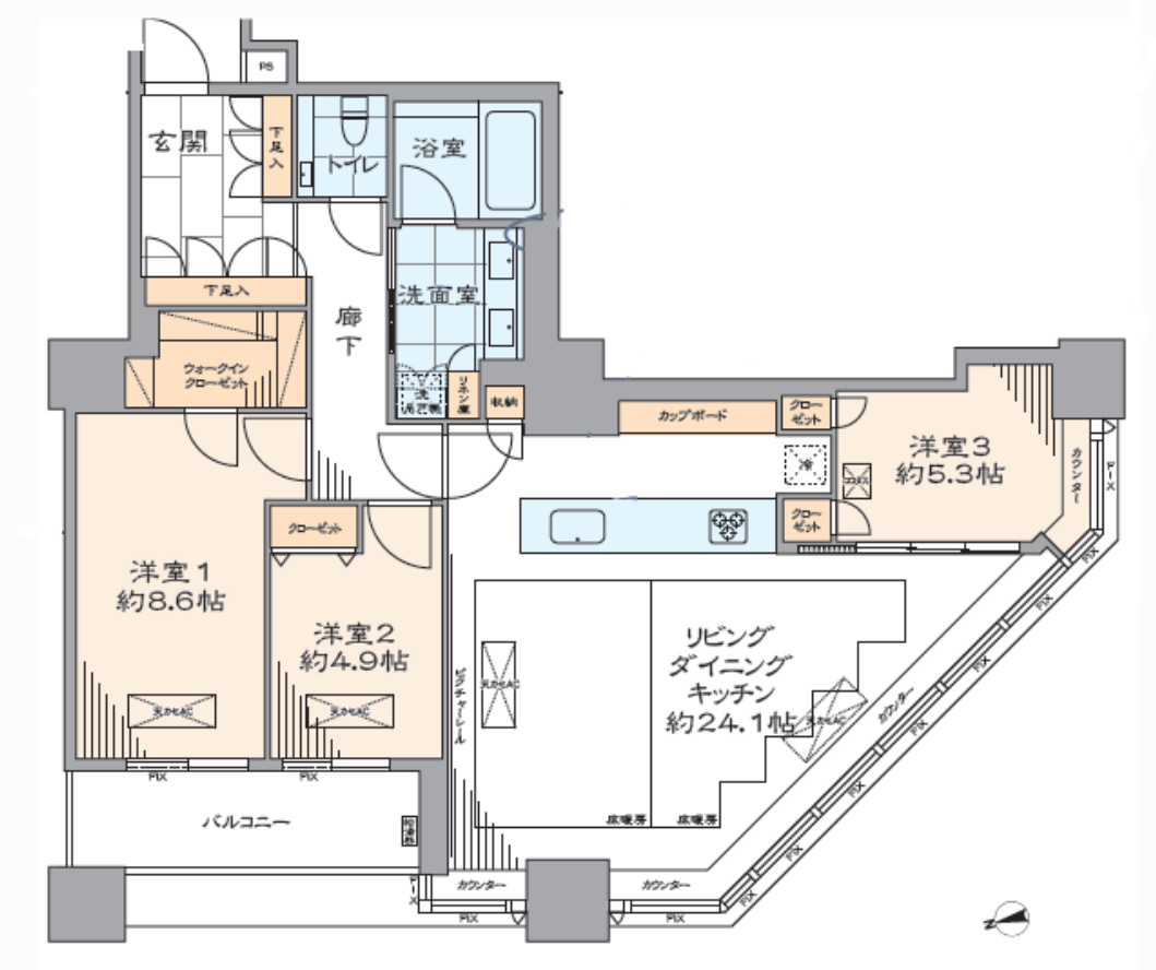
| 間取内容 | LDK24.1帖 洋室8.6帖 洋室4.9帖 洋室5.3帖 | ||
| 住宅保険料 | 修繕積立金 | 38,572円 | |
| 駐車場 | 空有 | 取引態様 | 仲介 |
| 引渡/入居時期 | 相談 | 現況 | 空家 |
| 周辺環境 | |||
| 設備・条件 |
ペット飼育:可(2匹以内・体長70㎝体高40㎝体重10㎏以内・規約有)
事務所使用:不可 ・ 駐輪場:空有(3,600円/年)
バイク置場:空き要確認 空有(2,000円~4,000円/月)
インターネット使用料:1620円/月
トランクルーム:空無(800~1,300円/月)
駐車場:空無(32,000円~45,000円/月)
|
||
| 物件カテゴリー | |||
| 自社物 | 先物 | 状態 | |
| 物件番号 | 251227 | ||
| 情報登録日 | 2025年12月14日 | 情報更新日 | 2025年12月14日 |
【白金タワー2609】
3LDK+WIC 101.33㎡ 西向き
【おすすめポイント】
・地上42階建のタワーレジデンス
・白金高輪駅直結天候が悪くても楽々便利!!
・お部屋から富士山を望むことができます。
・LDKのダイレクトウィンドウによりお部が広く感じられます。
【共用施設一覧】
・フロントコンシェルジュ
・フィットネスジムスペース
・デスクブース
・ビューラウンジ、スカイラウンジ 25階
・ゲストルーム
・クリエイションルーム
・応接室
・フォーラム17 (会議室)
・和室
・カンファレンスルーム
・洗車場
・ゲストパーキング
【リノベーション内容】
・フローリング張替
・壁、天井クロス張替え
・給湯器新規交換
・照明器具新規設置
・建具玄関収納等新規交換
・エアコン4基新規設置
・洗面化粧台交換
・床暖房マット新規設置
・温水洗浄便座付トイレ新規交換
・ユニットバス新規交換
・システムキッチン新規交換
物件掲載内容と現況に相違がある場合は現況を優先といたします。
物件周辺マップ
Loading...
ご注意
- 物件によっては正確な位置を示していない場合がございます。
- 現況が表示された内容と異なる場合は現況優先といたします。
- 表示されてる地図はGoogle社より提供されてるデータに基づいたものであり、表示内容についての責任は負いかねます。





























