
外観パークタワー勝どきミッド

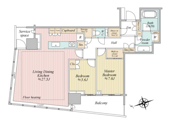
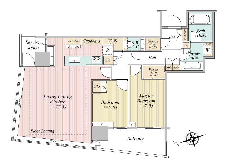
間取2LDK(LDK27.5帖+洋室7.0+洋室5.6+WIC+SIC)

バルコニーから浜離宮を望む眺望

バルコニーから東京タワー一部を望む眺望

バルコニーから東京タワー一部を望む眺望(夜景)

LDKのパノラマウィンドウより都心を望む眺望

LDKのパノラマウィンドウより都心を望む眺望(夜景)

LDK27.5帖

LDK27.5帖

カップボードがあり収納豊富

3つ口ガスコンロ、ディスポーザー、食洗機付のキッチン

洋室5.6帖

洋室7.0帖

洋室7.0帖+WIC1.0帖つき

洗面化粧室

1620サイズのゆとりある浴室

お手洗い

玄関

玄関

廊下

エントランス

ミッド8階ラウンジ

ミッド8階パーティールーム

ミッド8階ジム
- 前へ
- 次へ
このページを印刷する
- 価格
-
3億9,800万円
- 間取
-
2LDK
- 管理費等
- 3万2,640円
| 所在地 | 東京都中央区勝どき4 |
|---|---|
| 建物名 | パークタワー勝どきミッド |
| 交通 |
|
| 築年月 | 2023/8 | 新築/中古 | 中古 |
|---|---|---|---|
| 面積 | 91.87m²(27.79坪) | 計測方式 | 壁芯 |
| バルコニー | 9.25m²(2.79坪) | 向き | 北西 |
| 建物階数 | 地上45階地下2階 | 所在階 | 24階 |
| 部屋番号/区画番号 | --- | 総戸数/総区画数 | 1121戸 |
| 建物構造 | RC | ||
| 管理形態 | 全部委託管理人日勤管理組合:有 | ||
| 間取内容 | LDK27.5帖 洋室7.0帖 洋室5.6帖 | ||
| 住宅保険料 | 修繕積立金 | 11,190円 | |
| 駐車場 | 空無 | 取引態様 | 専任 |
| 引渡/入居時期 | 相談 | 現況 | 空家 |
| 周辺環境 | 敷地内にコンビニ、スーパー、クリニックなど有り | ||
| 設備・条件 |
インターネット使用料月額 770 円
|
||
| 物件カテゴリー | |||
| 自社物 | 自社物 | 状態 | 売出中 |
| 物件番号 | 21681 | ||
| 情報登録日 | 2026年4月6日 | 情報更新日 | 2026年4月6日 |
【当社専任物件×仲介手数料30%オフ×2年間の設備保証】
【お部屋の特徴】
2LDK/91.87㎡/北西、北東向き
パノラマウィンドウから浜離宮恩賜庭園と築地再開発を望む眺望
ウォークインクローゼット+シューズインクローゼットで収納豊富
トランクルーム面積1.40㎡付
【マンションの特徴】
勝どき駅徒歩1分のツインタワー(2023年8月築)
三井不動産レジデンシャル旧分譲×清水建設施工
1階~3階は商業施設(1階:ライフ勝どきミッド店)
【共用施設】
ミッド8階
ラウンジ・パーティールーム・スタディラウンジ
シアタールーム・ジム・ゴルフレンジ・
ゲストルーム
サウス2階
ラウンジ・スタディールーム
サウス53階
ルーフトップラウンジ
【設備・仕様】
ディスポーザー・カップボード
浴室乾燥機・追い炊き・ウォシュレット
最大天井高約2,600mm(LD部分)
物件掲載内容と現況に相違がある場合は現況を優先といたします。
物件周辺マップ
Loading...
ご注意
- 物件によっては正確な位置を示していない場合がございます。
- 現況が表示された内容と異なる場合は現況優先といたします。
- 表示されてる地図はGoogle社より提供されてるデータに基づいたものであり、表示内容についての責任は負いかねます。



