このページを印刷する
- 価格
-
1億500万円
- 間取
-
4LDK
- 管理費等
- 2万890円
| 所在地 | 千葉県千葉市美浜区若葉3丁目 |
|---|---|
| 建物名 | 幕張ベイパークミッドスクエアタワー |
| 交通 |
|
| 築年月 | 2023年10月(築2年6ヶ月) | 新築/中古 | 中古 |
|---|---|---|---|
| 面積 | 95.38m²(28.85坪) | 計測方式 | 壁芯 |
| バルコニー | 23.89m²(7.22坪) | 向き | 北西 |
| 建物階数 | 地上43階地下0階 | 所在階 | 15階 |
| 部屋番号/区画番号 | --- | 総戸数/総区画数 | 749 |
| 建物構造 | RC | ||
| 管理形態 | 全部委託管理人常駐管理組合:有 | ||
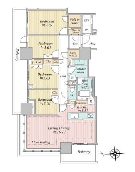
| 間取内容 | LD19.6帖 洋室7帖 洋室5.0帖 洋室5帖 洋室5.0帖 | ||
| 住宅保険料 | 修繕積立金 | 13,740円 | |
| 駐車場 | 空無 | 取引態様 | 仲介 |
| 引渡/入居時期 | 即時 | 現況 | 空家 |
| 周辺環境 | |||
| 設備・条件 |
インターネット接続料:月額1,980円
テレビ共視聴設備使用料:550円
|
||
| 物件カテゴリー | |||
| 自社物 | 自社物 | 状態 | 売出中 |
| 物件番号 | 21598 | ||
| 情報登録日 | 2026年4月5日 | 情報更新日 | 2026年4月12日 |
【当社専任物件×仲介手数料30%オフ物件×2年間の設備保証】
幕張ベイパーク ミッドスクエアタワー
95.38㎡ 4LDK 15階 北西角部屋
北側は公園を臨み、西側には海が臨めます
【室内】
◆LDK19.6帖、北西角のダイレクトウィンドウ終日明るいです
◆リビング西側から海を臨む
◆4LDKのため、子供部屋・書斎/テレワーク用居室の確保可能
◆全居室が廊下からのアクセスで独立してプライバシーが確保できます
◆廊下に合計4か所の収納
◆浴室サイズはゆとりのある1620サイズ
【設備・仕様】
◆食洗機・水栓一体型浄水器
◆床暖房・カラーモニター付インターフォン・浴室乾燥機
◆オプションの据付カップボード、玄関大型姿見
【マンションの特徴】
◆二重床・二重天井
◆24時間有人管理体制
◆24時間ゴミ出し可能な各階ゴミ置場
◆宅配ボックス
◆ペット飼育可(細則有)
【共用施設】
【38階】スカイビューラウンジ、ゲストルームスカイスイート
【1階】スタディラウンジ、リラックスラウンジ、コモンラウンジ、パーティールーム、ゲストルーム
物件掲載内容と現況に相違がある場合は現況を優先といたします。
物件周辺マップ
Loading...
ご注意
- 物件によっては正確な位置を示していない場合がございます。
- 現況が表示された内容と異なる場合は現況優先といたします。
- 表示されてる地図はGoogle社より提供されてるデータに基づいたものであり、表示内容についての責任は負いかねます。

























