このページを印刷する
- 価格
-
1億2,700万円
- 間取
-
2SLDK
- 管理費等
- 1万3,650円
| 所在地 | 東京都江東区東陽2-2-14 |
|---|---|
| 建物名 | シティテラス東陽町 |
| 交通 |
|
| 築年月 | 2016年9月(築9年8ヶ月) | 新築/中古 | 中古 |
|---|---|---|---|
| 面積 | 70.27m²(21.25坪) | 計測方式 | 壁芯 |
| バルコニー | 向き | 南 | |
| 建物階数 | 地上15階 | 所在階 | 14階 |
| 部屋番号/区画番号 | --- | 総戸数/総区画数 | 522戸 |
| 建物構造 | RC | ||
| 管理形態 | 全部委託管理人日勤管理組合:有 | ||
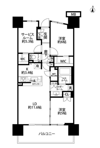
| 間取内容 | LDK15.0帖 洋室6帖 洋室5帖 S5.3帖 | ||
| 住宅保険料 | 修繕積立金 | 9,740円 | |
| 駐車場 | 19,000円空有 駐車場/空き有月額19,000〜35,000 円 |
取引態様 | 仲介 |
| 引渡/入居時期 | 相談 | 現況 | |
| 周辺環境 | |||
| 設備・条件 |
3,600円/年(町会費)
|
||
| 物件カテゴリー | |||
| 自社物 | 先物 | 状態 | 売出中 |
| 物件番号 | 260401 | ||
| 情報登録日 | 2026年4月1日 | 情報更新日 | 2026年4月1日 |
【仲介手数料50%オフ×2年間の設備保証】

東京メトロ東⻄線『東陽町』駅徒歩5分
住友不動産旧分譲マンション
南向き、眺望良好なお部屋です

✅2部屋にウォークインクローゼット
✅ハウスクリーニング完了済み


■ ペット飼育/ 可(細則あり)
■ エレベータ/ 有
■ オートロック/ 有
■ 駐車場/空き有月額19,000〜35,000 円
物件掲載内容と現況に相違がある場合は現況を優先といたします。
物件周辺マップ
Loading...
ご注意
- 物件によっては正確な位置を示していない場合がございます。
- 現況が表示された内容と異なる場合は現況優先といたします。
- 表示されてる地図はGoogle社より提供されてるデータに基づいたものであり、表示内容についての責任は負いかねます。















