このページを印刷する
- 価格
-
8,990万円
- 間取
-
3LDK
- 管理費等
- 1万6,600円
| 所在地 | 東京都江東区東陽7丁目2-6 |
|---|---|
| 建物名 | ライオンズステージ東陽町 |
| 交通 |
|
| 築年月 | 2001/1 | 新築/中古 | 中古 |
|---|---|---|---|
| 面積 | 76.11m²(23.02坪) | 計測方式 | 壁芯 |
| バルコニー | 10.65m²(3.22坪) | 向き | 西 |
| 建物階数 | 地上10階 | 所在階 | 2階 |
| 部屋番号/区画番号 | --- | 総戸数/総区画数 | 34 |
| 建物構造 | RC | ||
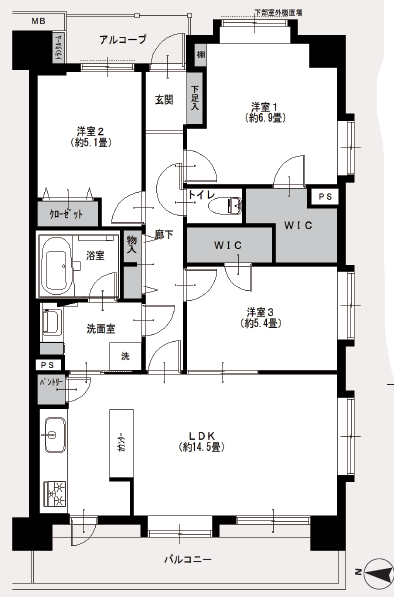
| 間取内容 | LDK14..5帖 洋室6.9帖 洋室5.1帖 洋室5.4帖 +WIC |
||
| 住宅保険料 | 修繕積立金 | 19,000円 | |
| 駐車場 | 取引態様 | 仲介 | |
| 引渡/入居時期 | 相談 | 現況 | |
| 周辺環境 | ・サミットストアイースト21店 徒歩約4分(350m) ・江東区役所 徒歩約5分(400m) ・イキイキ生鮮市場東陽町店 約徒歩6分(450m) |
||
| 設備・条件 |
・駐車場:空要確認(月額26,000円~30,000円)
・駐輪場:1台目無償・2台目以降月額1,000円~3,000円
・バイク置場:空要確認(年額15,000円)
・ペット飼育/犬・猫1匹まで飼育可(細則有)
|
||
| 物件カテゴリー | |||
| 自社物 | 先物 | 状態 | |
| 物件番号 | 260209 | ||
| 情報登録日 | 2026年2月9日 | 情報更新日 | 2026年2月9日 |
【仲介手数料無料】
ライオンズステージ東陽町
3LDK+2WIC 76.11㎡ 西向き
【おすすめポイント】
・キッチン横にはパントリー収納多数!!!
・2WAY動線の洗面室で室内の移動も楽々
・2つのWICで収納たっぷりハンガーにかけて衣服整理も◎
【リノベーション内容】
・システムキッチン交換
・ユニットバス交換
・洗面化粧台交換
・トイレ交換
・全室クロス張替え
・全フローリング張替え
・全建具交換
・フロアタイル張替え
・洗濯水栓器具交換
・防水パン交換
・スイッチパネル設置
・ダウンライト追加
・照明器具設置
・玄関人感センサー設置
物件掲載内容と現況に相違がある場合は現況を優先といたします。
物件周辺マップ
Loading...
ご注意
- 物件によっては正確な位置を示していない場合がございます。
- 現況が表示された内容と異なる場合は現況優先といたします。
- 表示されてる地図はGoogle社より提供されてるデータに基づいたものであり、表示内容についての責任は負いかねます。





























