このページを印刷する
- 価格
-
1億5,490万円
- 間取
-
3LDK
- 管理費等
- 1万1,870円
| 所在地 | 東京都中央区新川1-13-3 |
|---|---|
| 建物名 | サンウッド東京茅場町パーク フロント |
| 交通 |
|
| 築年月 | 2015年4月(築10年10ヶ月) | 新築/中古 | 中古 |
|---|---|---|---|
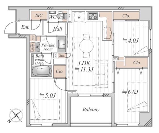
| 面積 | 62.81m²(19坪) | 計測方式 | 壁芯 |
| バルコニー | 6.0m²(1.81坪) | 向き | 北西 |
| 建物階数 | 地上11階 | 所在階 | 2階 |
| 部屋番号/区画番号 | --- | 総戸数/総区画数 | 30 |
| 建物構造 | RC | ||
| 管理形態 | 全部委託管理人日勤管理組合:有 | ||
| 間取内容 | LDK11.3帖 洋室6.0帖 洋室5.0帖 洋室4.0帖 | ||
| 住宅保険料 | 修繕積立金 | 10,360円 | |
| 駐車場 | 空有 | 取引態様 | 仲介 |
| 引渡/入居時期 | 相談 | 現況 | 空家 |
| 周辺環境 | |||
| 設備・条件 |
駐車場※空き要確認月額34000円
ペット飼育:可(⽝、猫の場合はあわせて2匹までとし、成⻑時体⻑64cm、成⻑時体重36㎏以内に限る。
|
||
| 物件カテゴリー | |||
| 自社物 | 先物 | 状態 | |
| 物件番号 | 251217 | ||
| 情報登録日 | 2025年12月14日 | 情報更新日 | 2025年12月14日 |
【サンウッド東京茅場町パークフロント201】
3LDK 62.81㎡ 北西向き
【おすすめポイント】
・ホテルライクな内廊下設計
・越前堀児童公園を望む眺望になります。
・東京メトロ東西線日比谷線「茅場町」駅まで徒歩6分
・大手町まで1駅都心へのアクセスも◎
【リフォーム内容】
・システムキッチン新規交換
・クロス全室張替え
・フローリング全室張替え
・浴室換気乾燥機交換
・洗面ミラー交換
・一部建具新規交換
・給湯器交換
・ルームクリーニング
物件掲載内容と現況に相違がある場合は現況を優先といたします。
物件周辺マップ
Loading...
ご注意
- 物件によっては正確な位置を示していない場合がございます。
- 現況が表示された内容と異なる場合は現況優先といたします。
- 表示されてる地図はGoogle社より提供されてるデータに基づいたものであり、表示内容についての責任は負いかねます。











