このページを印刷する
- 価格
-
5億9,880万円
- 間取
-
2LDK
- 管理費等
- 6万6,170円
| 所在地 | 東京都千代田区三番町 |
|---|---|
| 建物名 | ザ・パークハウスグラン三番町26 |
| 交通 |
|
| 築年月 | 2024年8月(築1年3ヶ月) | 新築/中古 | 中古 |
|---|---|---|---|
| 面積 | 104.53m²(31.62坪) | 計測方式 | 壁芯 |
| バルコニー | 6.25m²(1.89坪) | 向き | 西 |
| 建物階数 | 地上17階地下2階 | 所在階 | 11階 |
| 部屋番号/区画番号 | --- | 総戸数/総区画数 | 102 |
| 建物構造 | RC | ||
| 管理形態 | 全部委託管理人常駐管理組合:有 | ||
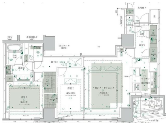
| 間取内容 | LD18.6帖 K5.9帖 洋室9.2帖 洋室8.2帖 | ||
| 住宅保険料 | 修繕積立金 | 11,500円 | |
| 駐車場 | ※空き状況は要確認 |
取引態様 | 仲介 |
| 引渡/入居時期 | 即時 | 現況 | 空家 |
| 周辺環境 | |||
| 設備・条件 |
|
||
| 物件カテゴリー | |||
| 自社物 | 先物 | 状態 | 売出中 |
| 物件番号 | 251038 | ||
| 情報登録日 | 2025年11月21日 | 情報更新日 | 2025年11月21日 |
【仲介手数料無料】
ザ・パークハウスグラン三番町26
三菱地所レジデンス最上級グレード「グラン」シリーズ
◆本物件おすすめポイント◆
■新築未入居物件
■西向き住戸
■広々104.53㎡の2LDK
■各洋室にWIC付きで収納豊富
■全居室窓付き
◆マンション◆
◆三菱地所レジデンス株式会社旧分譲
◆管理会社:三菱地所コミュニティ株式会社
◆24時間有人管理(夜間警備)
◆コンシェルジュサービス(一部有償)
◆各住戸にトランクルーム
◆ダクトスペース
各階フロアには、24時間ゴミ出しが可能なダクトスペースを設置
◆ホテルライクな内廊下
◆ペット飼育可(飼育細則有)
◆宅配ロッカー
◆アクセス◆
☆東京メトロ半蔵門線
「半蔵門」駅 徒歩8分
☆東京メトロ有楽町線・南北線・都営新宿線
「市ヶ谷」駅 徒歩8分
☆JR中央総武線
「市ヶ谷」駅 徒歩11分
☆東京メトロ東西線・半蔵門線・都営新宿線
「九段下」駅 徒歩11分
◆周辺環境◆
☆まいばすけっと九段南3丁目店
徒歩4分(約245m)
☆リンコス九段店
徒歩7分(約493m)
☆セブンイレブン九段南大妻通り店
徒歩2分(約93m)
☆くすりの福太郎九段北店
徒歩6分(約465m)
☆飯田橋サクラテラス
徒歩13分(約970m)
☆東郷元帥記念公園
徒歩7分(約488m)
☆麹町保育園
徒歩3分(約224m)
☆九段幼稚園
徒歩6分(約426m)
☆九段小学校
徒歩11分(約426m)
☆麹町中学校
徒歩20分(約1600m)
物件掲載内容と現況に相違がある場合は現況を優先といたします。
物件周辺マップ
Loading...
ご注意
- 物件によっては正確な位置を示していない場合がございます。
- 現況が表示された内容と異なる場合は現況優先といたします。
- 表示されてる地図はGoogle社より提供されてるデータに基づいたものであり、表示内容についての責任は負いかねます。













