このページを印刷する
- 価格
-
1億680万円
- 間取
-
1LDK
- 管理費等
- 1万9,120円
| 所在地 | 東京都港区芝浦4 |
|---|---|
| 建物名 | プラウドタワー芝浦 |
| 交通 |
|
| 築年月 | 2023年1月(築3年3ヶ月) | 新築/中古 | 中古 |
|---|---|---|---|
| 面積 | 43.85m²(13.26坪) | 計測方式 | 壁芯 |
| バルコニー | 9.52m²(2.87坪) | 向き | 東 |
| 建物階数 | 地上33階地下1階 | 所在階 | 8階 |
| 部屋番号/区画番号 | --- | 総戸数/総区画数 | 421戸 |
| 建物構造 | RC | ||
| 管理形態 | 全部委託管理人日勤管理組合:有 | ||
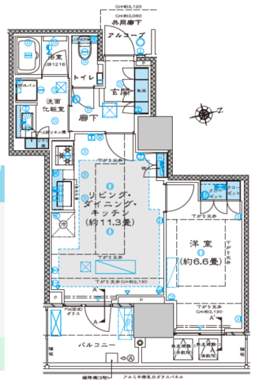
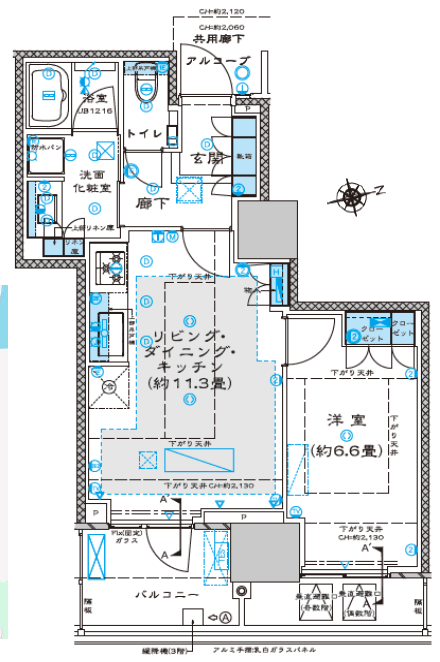
| 間取内容 | LDK11.3帖 洋室6.6帖 | ||
| 住宅保険料 | 修繕積立金 | 6,620円 | |
| 駐車場 | 取引態様 | 仲介 | |
| 引渡/入居時期 | 相談 | 現況 | 居住中 |
| 周辺環境 | |||
| 設備・条件 |
enecoQ:1628円/月
スマートマンションサービス料:660円/月
|
||
| 物件カテゴリー | |||
| 自社物 | 先物 | 状態 | |
| 物件番号 | 260412 | ||
| 情報登録日 | 2026年4月2日 | 情報更新日 | 2026年4月2日 |
【仲介手数料30%オフ】
プラウドタワー芝浦 8階 東向き 1LDK
【おすすめポイント】
・レインボーブリッジ方面を望む眺望
・お部屋からの眺望が開放感があります
・野村不動産㈱旧分譲 ㈱竹中工務店施工 人気の〈プラウドタワー〉
・専有面積43.85㎡
・廊下が短く効率的に使える間取りです。
・コンシェルジュサービス
・2駅4路線利用可
~充実の共用設備~
・24時間セキュリティシステム
・各階にゴミステーション
・ゲストルーム
・フィットネス
・スカイデッキ等
物件掲載内容と現況に相違がある場合は現況を優先といたします。
物件周辺マップ
Loading...
ご注意
- 物件によっては正確な位置を示していない場合がございます。
- 現況が表示された内容と異なる場合は現況優先といたします。
- 表示されてる地図はGoogle社より提供されてるデータに基づいたものであり、表示内容についての責任は負いかねます。



























