このページを印刷する
- 価格
-
1億8,500万円
- 間取
-
2LDK
- 管理費等
- 2万2,207円
| 所在地 | 東京都江東区豊洲3 |
|---|---|
| 建物名 | シティタワーズ豊洲ザ・シンボル |
| 交通 |
|
| 築年月 | 2009年12月(築16年4ヶ月) | 新築/中古 | 中古 |
|---|---|---|---|
| 面積 | 79.54m²(24.06坪) | 計測方式 | 壁芯 |
| バルコニー | 5.68m²(1.71坪) | 向き | 東 |
| 建物階数 | 地上44階 | 所在階 | 41階 |
| 部屋番号/区画番号 | --- | 総戸数/総区画数 | 850戸 |
| 建物構造 | RC | ||
| 管理形態 | 全部委託管理人日勤管理組合:有 | ||
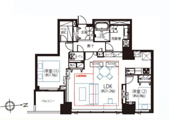
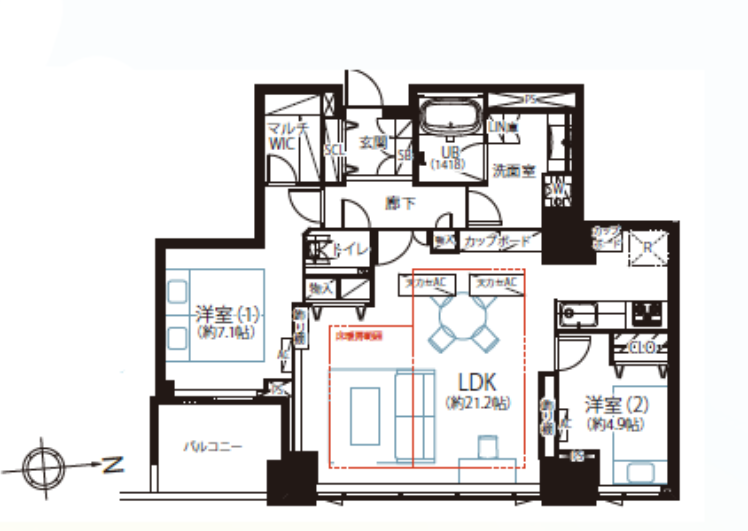
| 間取内容 | LDK21.2帖 洋室7.1帖 洋室4.9帖 | ||
| 住宅保険料 | 修繕積立金 | 19,700円 | |
| 駐車場 | 取引態様 | 仲介 | |
| 引渡/入居時期 | 相談 | 現況 | 空家 |
| 周辺環境 | |||
| 設備・条件 |
|
||
| 物件カテゴリー | |||
| 自社物 | 先物 | 状態 | 売出中 |
| 物件番号 | 260302 | ||
| 情報登録日 | 2026年3月20日 | 情報更新日 | 2026年3月20日 |
シティタワーズ豊洲ザ・シンボル
◆東京メトロ有楽町線「豊洲」駅徒歩6分 ゆりかもめ「豊洲」駅徒歩10分
◆東向き2LDK 79.54㎡
東京湾・豊洲運河を望む眺望
住友不動産旧分譲×竹中工務店施工
2024年大規模修繕工事完了
制震構造採用・二重床・二重天井・内廊下
ペット可
各階ゴミ置き場・24時間有人管理
トリプルオートロック・宅配ボックス
【設備・仕様】
TES床暖房(LD)
ディスポーザー・食洗器・浄水器内臓シャワー水栓
浴室乾燥機
温水洗浄便座・タンクレストイレ
【1階】
*キャナルサイドヒル
*キャナルガーデン
*サンセットウォーク
*洗車スペース500円/40分*レンタサイクル200円/6時間
*来客用駐車場200円/時間(1時間無料)
*来客用バイク100円/時間(1時間無料)
*来客用自転車100円/時間(3時間無料)
【2階】
*コンシェルジュサービス
*ロビーラウンジ
*スカイデッキ
【32F】
*スカイラウンジ開放使用10時~22時無料
貸切使用連続使用は6時間2,000/3時間
【ザ・ツイン内36階】
*ゲストルーム6部屋5,000円~10,000円/1泊
【B1階】
*シアター・カラオケルーム2部屋1,000円/3時間連続使用6時間
※専有面積にサイクルトランク2.15㎡を含みます。
物件掲載内容と現況に相違がある場合は現況を優先といたします。
物件周辺マップ
Loading...
ご注意
- 物件によっては正確な位置を示していない場合がございます。
- 現況が表示された内容と異なる場合は現況優先といたします。
- 表示されてる地図はGoogle社より提供されてるデータに基づいたものであり、表示内容についての責任は負いかねます。





























