このページを印刷する
- 価格
-
2億3,480万円
- 間取
-
3LDK
- 管理費等
- 2万4,990円
| 所在地 | 東京都豊島区南池袋1丁目 |
|---|---|
| 建物名 | グランドミレーニア |
| 交通 |
|
| 築年月 | 2015年2月(築10年11ヶ月) | 新築/中古 | 中古 |
|---|---|---|---|
| 面積 | 68.03m²(20.57坪) | 計測方式 | 壁芯 |
| バルコニー | 5.64m²(1.7坪) | 向き | 南西 |
| 建物階数 | 地上31階地下1階 | 所在階 | 23階 |
| 部屋番号/区画番号 | --- | 総戸数/総区画数 | 411戸 |
| 建物構造 | RC | ||
| 管理形態 | 全部委託管理人常駐管理組合:有 | ||
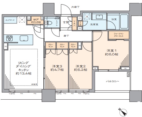
| 間取内容 | LDK13.4帖 洋室6帖 洋室5.2帖 洋室4.7帖 3LDK+WIC |
||
| 住宅保険料 | 修繕積立金 | 20,670円 | |
| 駐車場 | 空有 月額29,000~50,000円 ※空き状況は要確認 |
取引態様 | 仲介 |
| 引渡/入居時期 | 相談 | 現況 | 空家 |
| 周辺環境 | 老舗百貨店【西武池袋本店】 駅周辺には「東武百貨店」「パルコ」「ルミネ」等が集積 日常も休日も、ゆたかな暮らしが徒歩圏内に 都会のオアシス【南池袋公園】 緑がまぶしい芝生と併設されたカフェが人気の公園 区役所や郵便局等の行政施設も生活圏内に ▶セブンイレブン南池袋3丁目店・・・約150m(徒歩2分) ▶肉のハナマサPLUS池袋店・・・約110m(徒歩2分) |
||
| 設備・条件 |
|
||
| 物件カテゴリー | |||
| 自社物 | 先物 | 状態 | 売出中 |
| 物件番号 | 251236 | ||
| 情報登録日 | 2025年12月21日 | 情報更新日 | 2025年12月21日 |
【仲介手数料無料】
グランドミレーニア
3LDK+WIC / 68.03㎡
JR山手線・他7路線「池袋」駅 徒歩6分
2015年築×住友不動産㈱旧分譲×超高層免震タワーレジデンス
南池袋駅近の利便と上質な静けさが調和する、都心の美邸
【ホテルライクなマンション設備】
コンシェルジュカウンター/各階クリーンステーション
カーペット貼り内廊下/電気自動車充電設備(有料)
車寄せのあるサブエントランス/二重床構造
ペット2匹まで飼育可能(規約に準ず)
◆24時間有人管理
◆3段階オートロック
◆エレベーター内
操作ボタンロック
【お部屋内はゆとりのある上質な仕様】
・最高天井高2,600mmの開放的な居住空間
・ディスポーザー&食洗機付きシステムキッチンで毎日の家事をスマートに
・LDK全体をやさしく暖める床暖房&新規エアコン設置
・寛ぎの1418サイズバスルームには浴室乾燥機標準装備
・ウォークインクローゼット
・充実した収納スペース
【リノベーション済】※2025年11完了
ガスコンロ新規交換/食器洗い機新規交換/ディスポーザー新規交換
LIXIL製洗面化粧台新規交換/洗濯パン新規交換/壁・天井クロス新規貼替
給湯器新規交換(追焚式)/エアコン二基新規交換(LDK・洋室3)
LIXIL製洗浄便座付トイレ新規交換/浴室換気乾燥機新規交換 等
繁華街の喧騒から離れた穏やかな雰囲気
老舗百貨店【西武池袋本店】
駅周辺には「東武百貨店」「パルコ」「ルミネ」等が集積
日常も休日も、ゆたかな暮らしが徒歩圏内に
都会のオアシス【南池袋公園】
緑がまぶしい芝生と併設されたカフェが人気の公園
区役所や郵便局等の行政施設も生活圏内に
▶セブンイレブン南池袋3丁目店・・・約150m(徒歩2分)
▶肉のハナマサPLUS池袋店・・・約110m(徒歩2分)
物件掲載内容と現況に相違がある場合は現況を優先といたします。
物件周辺マップ
Loading...
ご注意
- 物件によっては正確な位置を示していない場合がございます。
- 現況が表示された内容と異なる場合は現況優先といたします。
- 表示されてる地図はGoogle社より提供されてるデータに基づいたものであり、表示内容についての責任は負いかねます。























