このページを印刷する
- 価格
-
1億2,770万円
- 間取
-
2LDK
- 管理費等
- 2万800円
| 所在地 | 東京都江東区豊洲3丁目 |
|---|---|
| 建物名 | THE TOYOSU TOWER |
| 交通 |
|
| 築年月 | 2008年10月(築17年5ヶ月) | 新築/中古 | 中古 |
|---|---|---|---|
| 面積 | 60.73m²(18.37坪) | 計測方式 | 壁芯 |
| バルコニー | 向き | 南 | |
| 建物階数 | 地上43階 | 所在階 | 15階 |
| 部屋番号/区画番号 | --- | 総戸数/総区画数 | 825 |
| 建物構造 | RC | ||
| 管理形態 | 全部委託管理人日勤管理組合:有 | ||
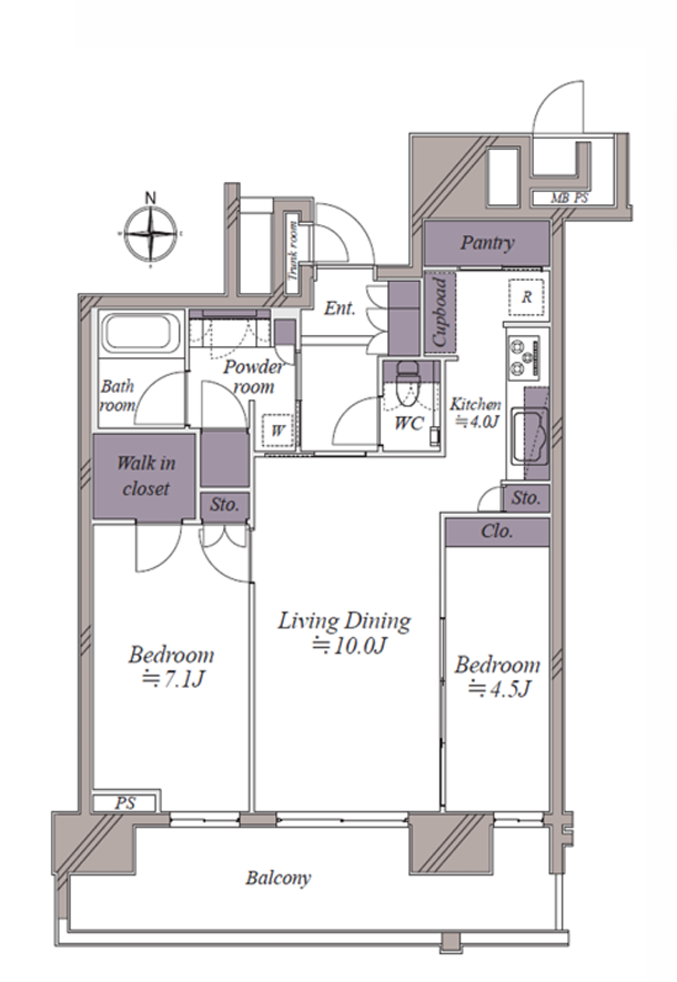
| 間取内容 | LDK10.0帖 洋室7.1帖 洋室4.5帖 | ||
| 住宅保険料 | 修繕積立金 | 18,010円 | |
| 駐車場 | 月額25,190円~59,730円 ※空き状況は要確認 |
取引態様 | 仲介 |
| 引渡/入居時期 | 相談 | 現況 | 空家 |
| 周辺環境 | |||
| 設備・条件 |
|
||
| 物件カテゴリー | |||
| 自社物 | 先物 | 状態 | 売出中 |
| 物件番号 | 251210 | ||
| 情報登録日 | 2025年12月27日 | 情報更新日 | 2025年12月27日 |
【仲介手数料30%オフ】
THE TOYOSU TOWER
◆本物件おすすめポイント◆
・リフォーム済み物件
・南向きのため、眺望・陽当たり・通風良好
・全居室バルコニーに面しており、ワイドスパン設計
お部屋の概要
■専有面積:60.73平米
■間取り:2LDK
■南向きの15階
■主寝室約7.1帖、洋室4.5帖
■各洋室にクローゼットあり、主寝室はウォークインクロゼットあり
マンションの概要
■2008年10月築
■総戸数 825戸、地上43階建て
■43階のスカイラウンジ
■27階のゲストルーム、1回あたり8,800円
■ライブラリー
■フィットネスジム
■キッズルーム
■マルチルーム(シアタールーム)、1時間あたり330円
アクセス
■東京メトロ有楽町線、「豊洲」駅 徒歩5分
物件掲載内容と現況に相違がある場合は現況を優先といたします。
物件周辺マップ
Loading...
ご注意
- 物件によっては正確な位置を示していない場合がございます。
- 現況が表示された内容と異なる場合は現況優先といたします。
- 表示されてる地図はGoogle社より提供されてるデータに基づいたものであり、表示内容についての責任は負いかねます。

























