このページを印刷する
- 価格
-
1億2,900万円
- 間取
-
2LDK
- 管理費等
- 2万1,250円
| 所在地 | 東京都豊島区東池袋3丁目 |
|---|---|
| 建物名 | パークタワー池袋イーストプレイス |
| 交通 |
|
| 築年月 | 2008年2月(築17年9ヶ月) | 新築/中古 | 中古 |
|---|---|---|---|
| 面積 | 57.43m²(17.37坪) | 計測方式 | 壁芯 |
| バルコニー | 9.49m²(2.87坪) | 向き | 北東 |
| 建物階数 | 地上31階地下1階 | 所在階 | 15階 |
| 部屋番号/区画番号 | --- | 総戸数/総区画数 | 205 |
| 建物構造 | RC | ||
| 管理形態 | 全部委託管理人日勤管理組合:有 | ||
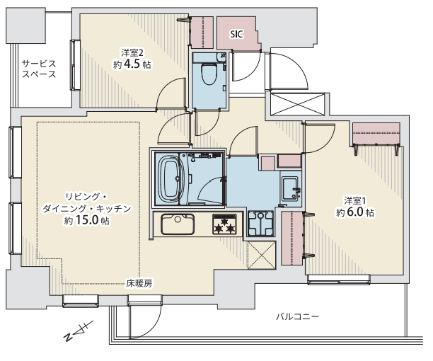
| 間取内容 | LDK15.0帖 洋室6.0帖 洋室4.5帖 | ||
| 住宅保険料 | 修繕積立金 | 20,670円 | |
| 駐車場 | 空有 月額32,000円~40,000円 ※空き状況は要確認 |
取引態様 | 仲介 |
| 引渡/入居時期 | 相談 | 現況 | 空家 |
| 周辺環境 | サンシャインシティ 約390m 徒歩5分 西友 約500m 徒歩7分 しずく内科クリニック東池袋 約520m 徒歩8分 ユナイテッド豊島ワンニャン動物病院 約770m 徒歩10分 朋友小学校 310m 徒歩4分 西果鴨中学校 610m 徒歩8分 |
||
| 設備・条件 |
|
||
| 物件カテゴリー | |||
| 自社物 | 先物 | 状態 | 売出中 |
| 物件番号 | 251110 | ||
| 情報登録日 | 2025年11月26日 | 情報更新日 | 2025年11月26日 |
【仲介手数料無料】
★パークタワー池袋イーストプレイス★
2LDK 專有面積(壁芯)▶57.43m2(17.37坪)
JR山手線「大塚」駅まで徒歩9分
都電荒川線「大塚」駅まで徒歩10分
東京メトロ有楽町線「東池袋」駅まで徒歩8分
JR山手線·埼京線·湘南新宿ライン
東京メトロ丸ノ内線·有楽町線·副都心線
東武東上線·西武池袋線「池袋」駅まで徒歩13分
■物件の特長■
・三井不動産レジデンシャル株旧分譲
・15階北東・北西向き角部屋、眺望良好
・コンシェルジュサービス・ゲストルーム有
・ホテルライクな内廊下設計
・人にもペットにもやさしいリノベーション
・「池袋」駅まで徒歩13分·「東池袋」駅まで徒歩8分
・建物1階部分にファミリーマート
・大規模複合商業施設 サンシャインシティまで徒歩5分
・小中学校徒歩10分圈内
(朋有小学校まで徒歩4分·西巣鴨中学校徒歩8分)
■リノベーション内容■
・キッチン(システムキッチン・W2250・食洗機)
・浴室(ユニットバス・1317サイズ)
・洗面室
・トイレ(温水洗浄便座付トイレ)
・給湯設備(給湯器・追焚・マルチリモコン付)
・照明器具、建具
・床:フローリング(LDK、洋室、廊下)、フロアタイル(玄関、洗面室、トイレ)
・壁天井クロス貼替
・室内クリーニング
物件掲載内容と現況に相違がある場合は現況を優先といたします。
物件周辺マップ
Loading...
ご注意
- 物件によっては正確な位置を示していない場合がございます。
- 現況が表示された内容と異なる場合は現況優先といたします。
- 表示されてる地図はGoogle社より提供されてるデータに基づいたものであり、表示内容についての責任は負いかねます。































