このページを印刷する
- 価格
- 
        3億9,990万円
- 間取
- 
        3LDK
- 管理費等
- 3万9,430円
| 所在地 | 東京都千代田区平河町1丁目 | 
|---|---|
| 建物名 | パークハウス平河町 | 
| 交通 | 
 | 
| 築年月 | 2007年9月(築18年1ヶ月) | 新築/中古 | 中古 | 
|---|---|---|---|
| 面積 | 111.09m²(33.6坪) | 計測方式 | 壁芯 | 
| バルコニー | 向き | 南 | |
| 建物階数 | 地上14階地下1階 | 所在階 | 13階 | 
| 部屋番号/区画番号 | --- | 総戸数/総区画数 | 55 | 
| 建物構造 | RC | ||
| 管理形態 | 全部委託管理人日勤管理組合:有 | ||
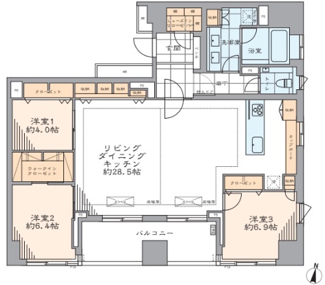
| 間取内容 | LDK28.5帖 洋室6.9帖 洋室6.4帖 洋室4.0帖 | ||
| 住宅保険料 | 修繕積立金 | 20,000円 | |
| 駐車場 | 取引態様 | 仲介 | |
| 引渡/入居時期 | 即時 | 現況 | 空家 | 
| 周辺環境 | |||
| 設備・条件 | 
 | ||
| 物件カテゴリー | |||
| 自社物 | 先物 | 状態 | 売出中 | 
| 物件番号 | 251042 | ||
| 情報登録日 | 2025年10月31日 | 情報更新日 | 2025年10月31日 | 
【仲介手数料無料】
パークハウス平河町
◆本物件おすすめポイント◆
・専有面積111m2超×13階×角部屋!
・2025年6月末にフルリノベーション済み!
お部屋の概要
 ■専有面積:111.09平米
 ■間取り:3LDK
 ■南×東の13階の角住戸
 ■床暖房あり(LD部分)
 ■主寝室約6.9帖、洋室6.4帖、洋室4.0帖
 ■各洋室にクローゼットあり
マンションの概要
  ■2006年(平成19年)10月築
  ■分譲会社:三菱地所(株)
  ■施工会社:戸田建設(株)
  ■設計会社:戸田建設(株) 
  ■免震構造
  ■明るく開放的な開口部を実現できる扁平梁による順梁工法
  ■ホテルライクな内廊下
  ■不在時にも荷物を受け取れる「宅配ロッカー」
  ■防災用備蓄倉庫
防犯
  ■TVモニター付オートロックシステム
  ■エントランス&エレベーターのダブルオートロック
  ■防犯カメラ 
  ■セコムによる24時間セキュリティシステム
  ■ディンプルシリンダーキー
リノベーション内容
◇キッチン◇
・キッチン新規交換(食洗器付き)
◇洗面室◇
・洗面室新規交換
◇浴室◇
・浴室新規交換(浴室乾燥機付き)
◇トイレ◇
・トイレ新規交換
◇その他◇
・クロス張替
・建具交換
・給湯器交換(専有部分)
・エアコン新規設置
アクセス
  ■東京メトロ有楽町線「麹町」駅  徒歩4分
  ■東京メトロ半蔵門線「半蔵門」駅 徒歩4分 
  ■東京メトロ南北線・有楽町線・半蔵門線「永田町」駅 徒歩6分
物件掲載内容と現況に相違がある場合は現況を優先といたします。
物件周辺マップ
Loading...
ご注意
- 物件によっては正確な位置を示していない場合がございます。
- 現況が表示された内容と異なる場合は現況優先といたします。
- 表示されてる地図はGoogle社より提供されてるデータに基づいたものであり、表示内容についての責任は負いかねます。








 
 
 
 
 
 



